Quadrilocale in vendita

San Mauro Torinese, Via Goito
€ 229.000
4 locali 4 locali
147 Mq 147 Mq
1 bagno 1 bagno

Quadrilocale in vendita

San Mauro Torinese, Via Goito

Descrizione annuncio

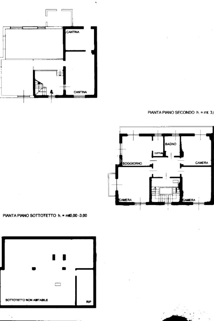
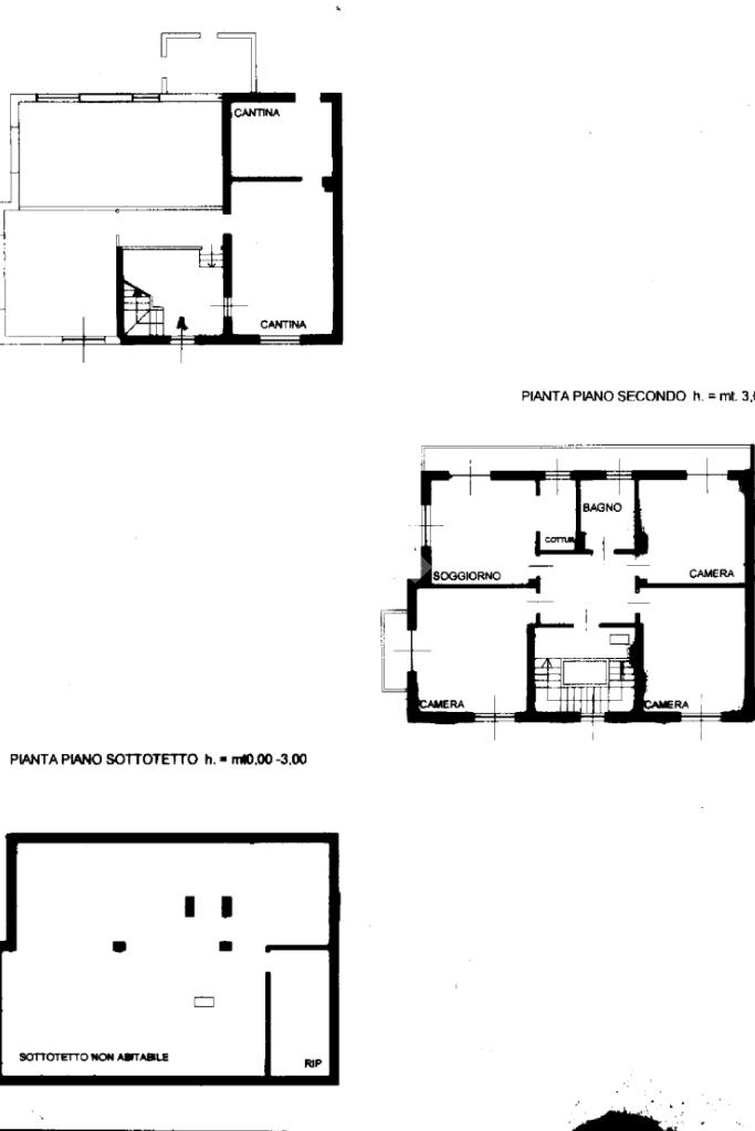
L'appartamento è situato all’ultimo piano di una villa bifamiliare, che offre ampi spazi e una grande possibilità di personalizzazione, grazie alla presenza di un sottotetto recuperabile. L'immobile si distingue per la sua luminosità, la sua tranquillità e per il potenziale che offre a chi desidera una soluzione abitativa con ampi spazi.

L’appartamento è composto da una cucina ben separata e un soggiorno luminoso, ideale per trascorrere piacevoli momenti in famiglia o con gli amici. Le due camere da letto matrimoniali sono spaziose e confortevoli, perfette per ospitare una famiglia. Il bagno, completo e funzionale, si integra perfettamente con gli altri spazi dell'abitazione.

Un grande vantaggio dell’immobile è la presenza del sottotetto, di proprietà esclusiva, che è collegabile internamente all’appartamento e offre la possibilità di essere recuperato e trasformato in altri 3 ambienti da destinare a camere da letto, con l’aggiunta di un bagno. Questo potenziale di ampliamento consente di adattare la casa alle proprie esigenze, aumentando significativamente la metratura disponibile.

L’appartamento è dotato di riscaldamento autonomo, che permette di regolare in modo indipendente la temperatura in base alle proprie necessità. Completano la proprietà due cantine, utili come spazio di deposito per conservare oggetti, attrezzature e tutto ciò che non trova posto nell'abitazione.

Situato in una zona residenziale tranquilla ma ben servita, l'immobile è la scelta ideale per chi cerca una soluzione pronta da vivere con la possibilità di ampliarla e personalizzarla secondo i propri gusti e necessità.

Mostra tutto

Nelle vicinanze

Trasporto pubblico Trasporto pubblico
Fermata Pian Gambino
Fermata Pian Gambino
2,8 Km
Fermata Raddoppio
Fermata Raddoppio
2,8 Km
Mochino
Mochino
120 m
Diaz
Diaz
350 m
Ricariche auto elettriche Ricariche auto elettriche
EnelX EVA+ Mercatò San Mauro Torinese
920 m
Scuole Scuole
Scuola Elementare Nino Costa
400 m
Scuola Primaria Statale Giorgio Catti
420 m
Scuola Media Statale Carlo Alberto Dalla Chiesa
600 m
Scuola dell'Infanzia Freinet
710 m
Scuola Elementare di Stato "Salavador Allende"
1,3 Km
Farmacia Farmacia
Oltre Po
130 m
Farmacia
320 m
Farmacia San Mauro
520 m
Farmacia S. Anna
940 m
Balossino
1,5 Km
Ospedali Ospedali
Ospedali
2,5 Km
Ospedale Civico di Settimo Torinese
2,5 Km
Supermercati Supermercati
Supermercati
760 m
Mercatò
950 m
Supermercato IN'S
1,6 Km
Offertissima
1,8 Km
Viridea Settimo T.se
1,9 Km
Negozi Negozi
Carrefour Express
500 m
Staff
960 m
Cutrera
1,3 Km
Negozi
1,4 Km
Ki Group
2,5 Km
Bar Bar
Caffetteria sul Po
310 m
Bar
500 m
Bar Taty
2,8 Km
Ristoranti Ristoranti
Il solito Posto
1,4 Km
Bar ristorante Pescarito
1,5 Km
Tassobarbasso
2,3 Km
Ristoranti
2,7 Km
Ristorante Pizzeria Mirò
2,7 Km
Mostra tutto

Caratteristiche

Rif.:
61165282
Piano:
1 di 2 (ultimo Piano)
Balconi:
2
Camere da letto:
2
Arredamento:
Assente
Condizionamento:
Assente
Mostra tutto
Prezzo Prezzo
€ 229.000
Prezzo box Prezzo box
€ 30.000
Rata mutuo Rata mutuo
€ 1.085 / mese
Spese annue Spese annue
€ 0
Proponi il tuo prezzoProponi il tuo prezzo

Classe Energetica

G
G
G
G
G
G
G
G
G
EP globale non rinnovabile:
313.00 kW h/m² anno
EP globale rinnovabile:
1.10 kW h/m² anno
EP invernale del fabbricato:
EP estiva del fabbricato:
Anno di costruzione:
1960
Riscaldamento:
Autonomo
Tipo impianto:
A radiatori
Tipo alimentazione:
Metano

Ti interessa visionare l'immobile?

Fissa un appuntamento  Fissa un appuntamento

Richiedi informazioni

Clicca su Leggi per aprire l'informativa
* Questi campi sono obbligatori

Calcola il tuo mutuo

Semplice e senza impegno
Anticipo

( % )
Mutuo

( % )

pochi semplici passi

inserisci i tuoi dati
Questionario completato
Grazie per aver richiesto un appuntamento senza impegno con un nostro Consulente del Credito e Assicurativo.

Hai inserito correttamente tutti i dati necessari e a breve riceverai una e-mail con un link da convalidare per inviare i tuoi dati.
Affiliato
Studio Gassinese Snc
Via Martiri della Libertà, 27 10099 San Mauro Torinese (TO)

Il nostro staff


  • Davide Torchio
    Responsabile
Via Martiri della Libertà, 27 10099 San Mauro Torinese (TO)
Zona: San Mauro Torinese
Mostra su mappa
Orari: da lunedì al venerdì ore 9:00/12:30 - 14:30/19:30 sabato ore 9:00/12:30 - 14:30/19:00
Affiliato
Studio Gassinese Snc
Via Martiri della Libertà, 27 10099 San Mauro Torinese (TO)

2026 Tecnocasa Franchising S.p.A. - P. IVA 08365160152 - Via Monte Bianco 60/A 20089 Rozzano (MI). Ogni agenzia ha un proprio titolare ed è autonoma. Privacy policy | Policy utilizzo | Cookie policy