Casa indipendente in vendita

San Mauro Torinese, Via torino - La Valle
€ 525.000
9 locali 9 locali
340 Mq 340 Mq
4 bagni 4 bagni

Casa indipendente in vendita

San Mauro Torinese, Via torino - La Valle

Descrizione annuncio

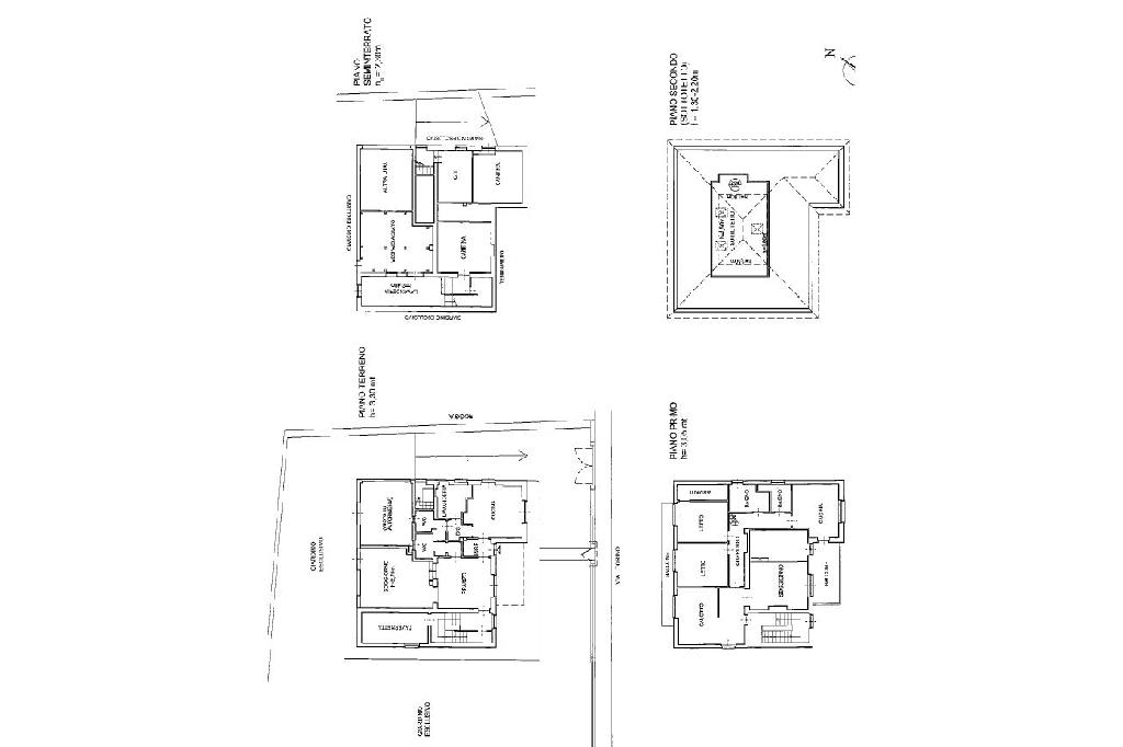
In via Torino,a due passi da tutti i servizi di prima necessità e dal centro storico di San Mauro Torinese, si propone in vendita una casa indipendente di 340 metri quadrati, perfetta per chi cerca spazio e comfort.

Questa residenza signorile ristrutturata in varie fasi degli anni 2000, offre un connubio di fascino storico e modernità. L'immobile si sviluppa su due livelli abitativi, oltre a un piano sottotetto e un piano semi-interrato dove si possono trovare varie cantine e un comodo box auto.

Il piano terreno ci accoglie in uno spazioso soggiorno, sala da pranzo, cucina abitabile, uno studio e due servizi igienici finestrati.

Tramite una comoda scala in muratura si accede alla zona notte composta da sei stanze e ulteriori due bagni.

Questa soluzione è ideale per accogliere una famiglia numerosa o per chi desidera ampi spazi per il lavoro e il tempo libero. Gli interni, curati nei dettagli, offrono ambienti luminosi e ben distribuiti, mentre l'esterno è arricchito da un giardino privato che garantisce tranquillità e privacy.

Recentemente è stato completamente rifatto a nuovo il tetto, isolandolo e coibentandolo mentre la caldaia è a condensazione.

La posizione strategica permette di godere della quiete della zona, pur essendo a breve distanza dai servizi e dalle comodità del centro cittadino. Un'opportunità unica per chi desidera vivere in un contesto esclusivo e riservato..

Mostra tutto

Nelle vicinanze

Trasporto pubblico Trasporto pubblico
Fermata Raddoppio
Fermata Raddoppio
2,1 Km
Fermata Pian Gambino
Fermata Pian Gambino
2,1 Km
La Valle
La Valle
20 m
Cimitero
Cimitero
150 m
Ricariche auto elettriche Ricariche auto elettriche
EnelX EVA+ Mercatò San Mauro Torinese
1,3 Km
Scuole Scuole
Scuola Elementare Nino Costa
500 m
Scuola Primaria Statale Giorgio Catti
530 m
Scuola Elementare di Stato "Salavador Allende"
700 m
Scuola dell'Infanzia Freinet
1,1 Km
Scuola Media Statale Carlo Alberto Dalla Chiesa
1,1 Km
Farmacia Farmacia
Farmacia S. Anna
270 m
Farmacia San Mauro
290 m
Farmacia
630 m
Oltre Po
680 m
Balossino
1,3 Km
Supermercati Supermercati
Supermercati
560 m
Supermercato IN'S
890 m
Mercatò
1,3 Km
Offertissima
1,6 Km
è il mio mercato
2,1 Km
Negozi Negozi
Carrefour Express
1,0 Km
Cutrera
1,2 Km
Negozi
1,3 Km
Staff
1,3 Km
Pastificio Virgilio
2,6 Km
Bar Bar
Caffetteria sul Po
640 m
Bar
1,0 Km
Bar Taty
2,7 Km
Ristoranti Ristoranti
Il solito Posto
1,3 Km
Bar ristorante Pescarito
2,0 Km
Bel Deuit
2,4 Km
Trattoria Superga
2,4 Km
La Piola d’le 2 Sorele
2,5 Km
Mostra tutto

Caratteristiche

Rif.:
61012486
Piano:
2 di 2 (Piano su più livelli)
Box:
1
Balconi:
2
Terrazzi:
1
Camere da letto:
6
Mostra tutto
Prezzo Prezzo
€ 525.000
Rata mutuo Rata mutuo
€ 2.474 / mese
Spese annue Spese annue
€ 0
Proponi il tuo prezzoProponi il tuo prezzo

Classe Energetica

E
E
E
E
E
E
E
E
E
EP globale non rinnovabile:
347.18 kW h/m² anno
EP globale rinnovabile:
347.18 kW h/m² anno
EP invernale del fabbricato:
EP estiva del fabbricato:
Anno di costruzione:
1940
Riscaldamento:
Autonomo
Tipo impianto:
A radiatori
Tipo alimentazione:
Metano

Ti interessa visionare l'immobile?

Fissa un appuntamento  Fissa un appuntamento

Richiedi informazioni

Clicca su Leggi per aprire l'informativa
* Questi campi sono obbligatori

Calcola il tuo mutuo

Semplice e senza impegno
Anticipo

( % )
Mutuo

( % )

pochi semplici passi

inserisci i tuoi dati
Questionario completato
Grazie per aver richiesto un appuntamento senza impegno con un nostro Consulente del Credito e Assicurativo.

Hai inserito correttamente tutti i dati necessari e a breve riceverai una e-mail con un link da convalidare per inviare i tuoi dati.
Affiliato
Studio Gassinese Snc
Via Martiri della Libertà, 27 10099 San Mauro Torinese (TO)

Il nostro staff


  • Davide Torchio
    Responsabile
Via Martiri della Libertà, 27 10099 San Mauro Torinese (TO)
Zona: San Mauro Torinese
Mostra su mappa
Orari: da lunedì al venerdì ore 9:00/12:30 - 14:30/19:30 sabato ore 9:00/12:30 - 14:30/19:00
Affiliato
Studio Gassinese Snc
Via Martiri della Libertà, 27 10099 San Mauro Torinese (TO)

2026 Tecnocasa Franchising S.p.A. - P. IVA 08365160152 - Via Monte Bianco 60/A 20089 Rozzano (MI). Ogni agenzia ha un proprio titolare ed è autonoma. Privacy policy | Policy utilizzo | Cookie policy